Verkocht

Koningslaan 26 Bussum

Omschrijving

In één van de fraaiste lanen van het Spiegel gelegen helft van een dubbele villa. Deze goed onderhouden karakteristieke villa is gebouwd in 1899 en heeft nog diverse typische stijlkenmerken van deze tijd zoals prachtige hoge plafonds en paneeldeuren. De ligging is gunstig ten opzichte van diverse scholen, sportfaciliteiten, natuurgebieden, winkels, openbaar vervoer, het station Naarden-Bussum en verschillende uitvalswegen.

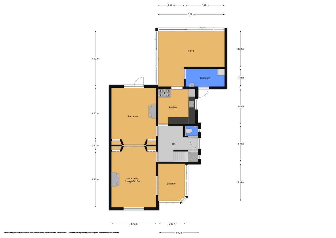
Indeling
Begane grond:
• Entree
• Ruime hal met fraai trappenhuis en toegang tot kelder met stahoogte
• Toilet met fonteintje
• L-vormige woon-/eetkamer en suite
• Keuken met luxe inbouwapparatuur
• Lichte aangebouwde serre met dubbele schuifpui
• Bijkeuken met wasmachine/wasdroger opstelling

Verdieping:
• Overloop met balkon
• Twee royale slaapkamers met vaste kasten
• Moderne badkamer met ligbad, douche en dubbele wastafel
• Tweede toilet (separaat)

Tweede verdieping:
• Lichte overloop met inloopkast met c.v. ruimte
• Derde slaapkamer met bergruimte
• Extra bergruimte

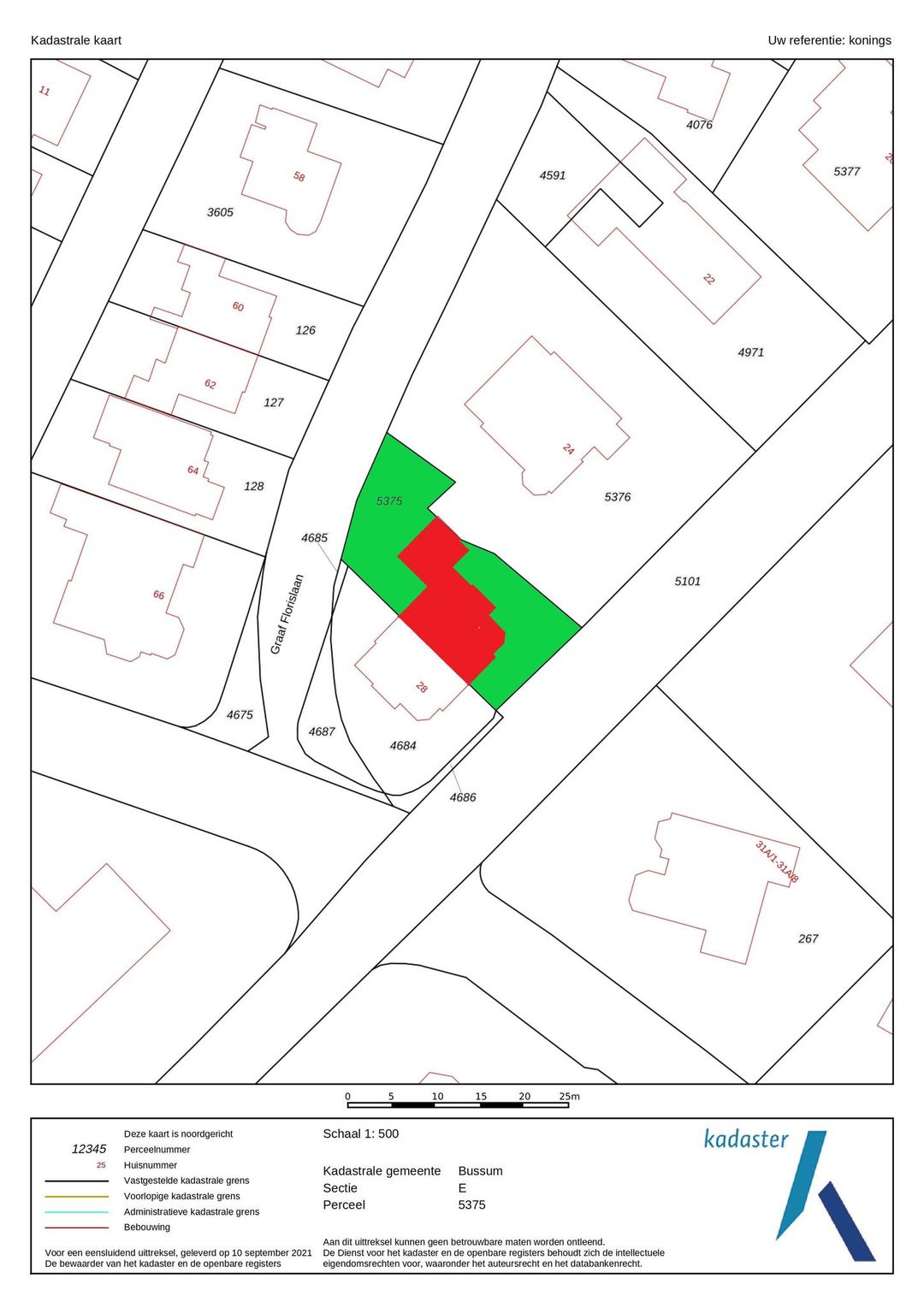
Perceelgrootte 3.61 are.

Lees de volledige omschrijving

Kenmerken

Algemeen

Aangeboden sinds
6+ maanden
Status
Verkocht
Aanvaarding
In overleg
Soort woonhuis
Villa, twee onder een kapwoning
Soort bouw
Bestaande bouw
Bouwjaar
1899
Specifiek
Beschermd stads of dorpsgezicht
Soort dak
Pannen
Ligging
Aan rustige weg, in woonwijk

Oppervlakten en inhoud

Wonen
201 m²
Overige inpandige ruimte
9 m²
Gebouwgebonden Buitenruimte
8 m²
Externe bergruimte
5 m²
Perceel
361 m²
Inhoud
803 m³

Indeling

Aantal kamers
7 kamers (3 slaapkamers)
Aantal woonlagen
4
Voorzieningen
Buitenzonwering, schuifpui

Energie

Energielabel
G
Isolatie
Gedeeltelijk dubbel glas
Verwarming
Cv ketel
Warm water
Cv ketel

Kadastrale gegevens

Perceelnaam
Bussum E 5375
Oppervlakte
361 m²
Eigendomssituatie
Volle eigendom
Perceel
BSM01-E-5375

Buitenruimte

Tuin
Achtertuin, voortuin
Achtertuin
135 m²
Ligging tuin
Noordwest bereikbaar via achterom

Bergruimte

Schuur/berging
Vrijstaand hout

Parkeergelegenheid

Soort parkeergelegenheid
Op eigen terrein
Bekijk alle kenmerken