Verkocht

Meulenwiekelaan 43 Bussum

Omschrijving

In rustige eenrichtingsverkeerslaan en op loopafstand van winkels, scholen, sportverenigingen en openbaar vervoer ligt deze sfeervolle vooroorlogse woning (bouwjaar circa 1923). Het woonhuis is voorzien van een tweetal goede slaapkamers, een zonnige voortuin met houten berging en een prachtig dakterras met uitzicht over heel Bussum!

Indeling:
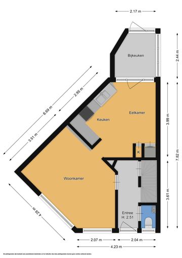
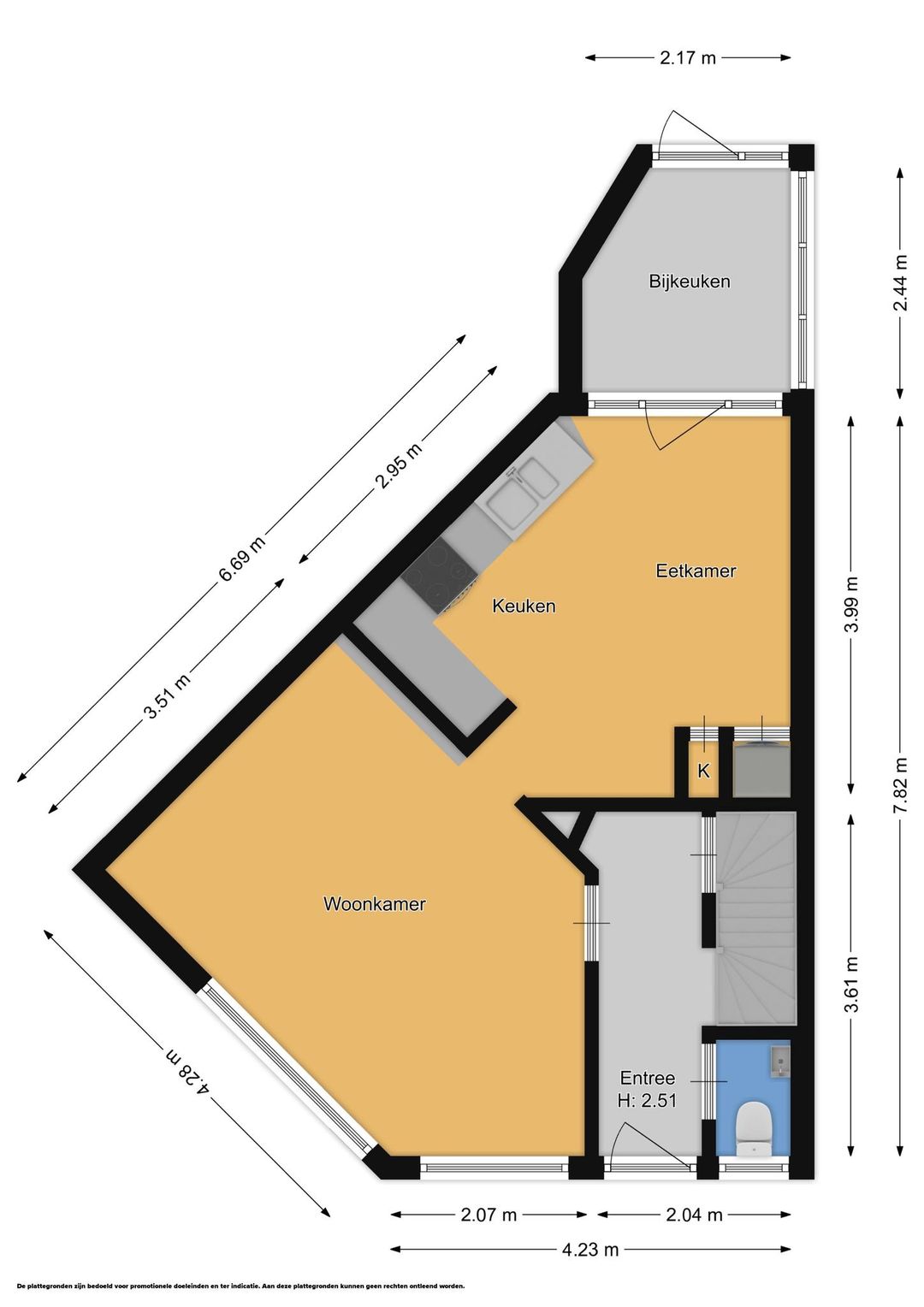
Begane grond:
Entree, hal, meterkast, toilet met fontein, lichte woonkamer, halfopen eetkeuken met diverse apparatuur en kast met aansluiting voor wasmachine en droger, aangebouwde verwarmde schuur met achterom, ruime kelder van circa 20 m2 voorzien van elektra.

Eerste verdieping:
Overloop, twee royale slaapkamers, badkamer met ligbad/douchecombinatie, tweede toilet, vloerverwarming en dubbel wastafelmeubel. Kast met opstelling c.v. (Remeha HR 2011).

Via een vlizotrap op de overloop is het zeer exclusieve dakterras (circa 40m2 groot) met fantastisch uitzicht over Bussum bereikbaar.

Deze woning is doordat hij in een “knik” gebouwd is, speels ingedeeld en dient beslist van binnen gezien te worden.
Bijzonderheden:
• Woonoppervlak circa 82m2
• Dakterras circa 40m2
• Geheel voorzien van dubbele beglazing
• Goed onderhouden
• Voldoende parkeergelegenheid voor de deur.

Lees de volledige omschrijving

Kenmerken

Algemeen

Aangeboden sinds
6+ maanden
Status
Verkocht
Aanvaarding
In overleg
Soort woonhuis
Eengezinswoning, tussenwoning
Soort bouw
Bestaande bouw
Bouwjaar
1924
Soort dak
Bitumineuze dakbedekking
Ligging
Aan rustige weg, in woonwijk

Oppervlakten en inhoud

Wonen
82 m²
Overige inpandige ruimte
16 m²
Gebouwgebonden Buitenruimte
40 m²
Perceel
85 m²
Inhoud
338 m³

Indeling

Aantal kamers
4 kamers (2 slaapkamers)
Aantal badkamers
1 badkamer
Badkamervoorzieningen
Dubbele wastafel, ligbad, toilet, wastafelmeubel
Aantal woonlagen
3
Voorzieningen
Glasvezel kabel

Energie

Energielabel
C
Isolatie
Dakisolatie, grotendeels dubbelglas, muurisolatie
Verwarming
Cv ketel
Warm water
Cv ketel
Cv-ketel
Remeha HR (gas gestookt combiketel uit 2011, eigendom)

Kadastrale gegevens

Perceelnaam
Bussum G 97
Oppervlakte
85 m²
Eigendomssituatie
Volle eigendom
Perceel
BSM01-G-97

Buitenruimte

Tuin
Voortuin
Voortuin
28 m²
Ligging tuin
Zuidwest

Bergruimte

Schuur/berging
Aangebouwd steen

Parkeergelegenheid

Soort parkeergelegenheid
Openbaar parkeren
Bekijk alle kenmerken