Verkocht

Prins Mauritslaan 17 Bussum

Omschrijving

Dit heerlijke lichte en sfeervolle familiehuis, een helft van een dubbele villa, ligt op een uniek plekje in één van de mooiste lanen van het Spiegel. Het huis heeft nog veel karakteristieke eigenschappen uit de bouwperiode en heeft een royale en zonnige voor- en achtertuin met overdekte veranda met houtkachel.

Het Spiegel is een kinderrijke buurt dichtbij scholen en sportclubs. De wijk kenmerkt zich door het vele groen, maar bevindt zich ook op loopafstand van het centrum van Bussum en tevens dichtbij de vele voorzieningen van Naarden, Laren, Hilversum, Amsterdam en Utrecht. Op loopafstand bevindt zich station Naarden-Bussum en op een paar minuten met de auto de A1.

Indeling:

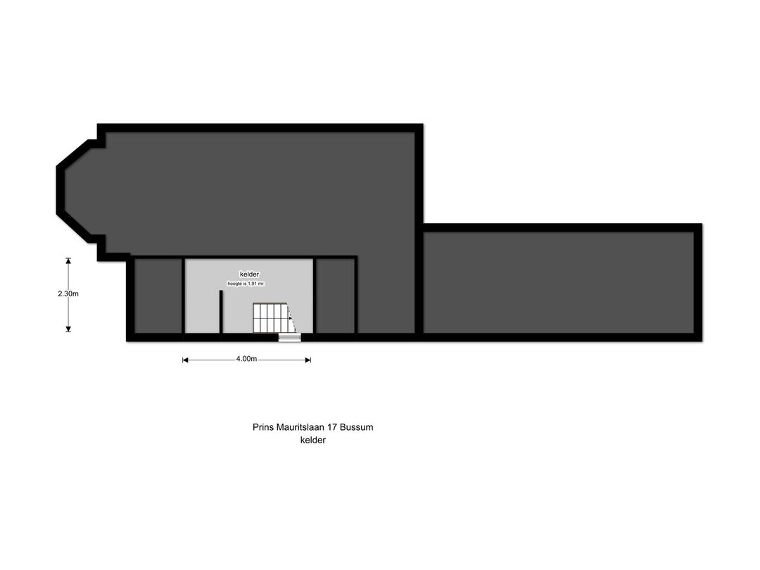
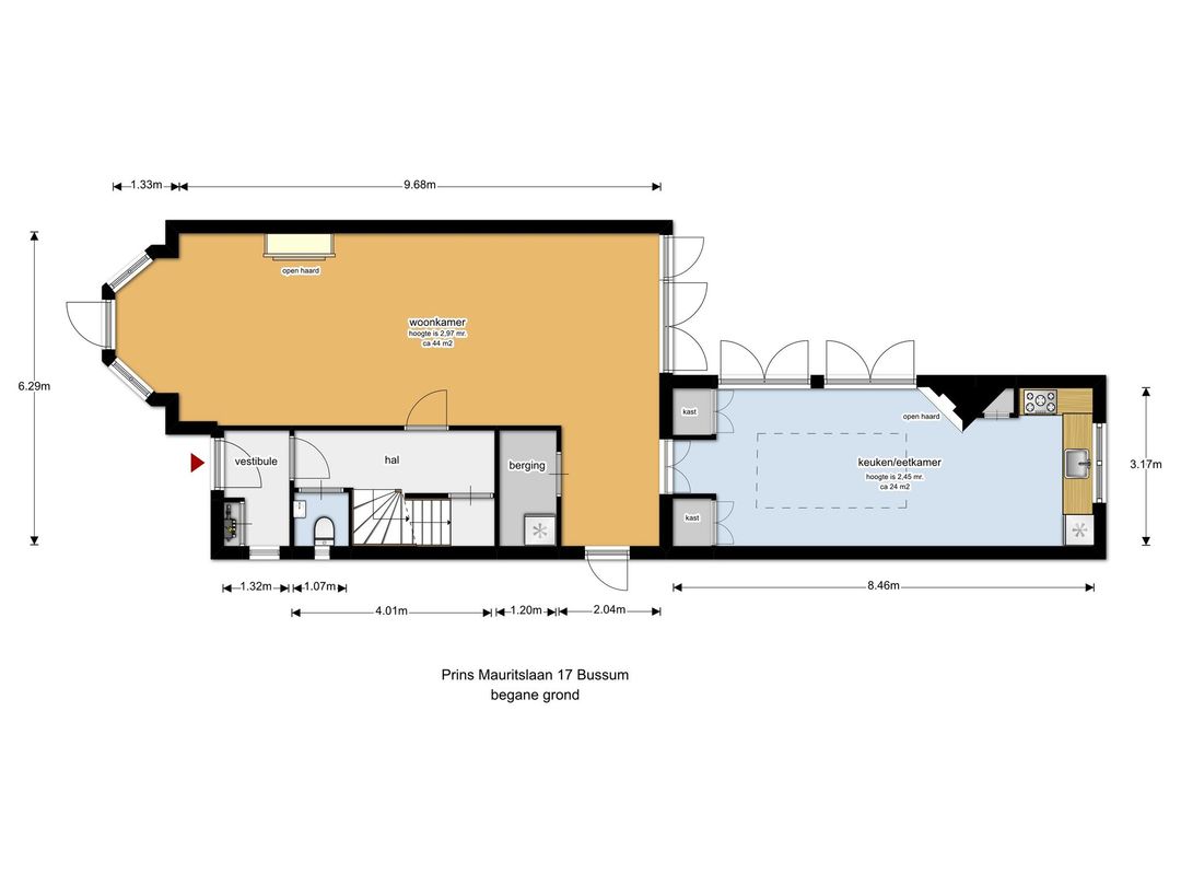
Begane grond:
Entree met vestibule, hal met granieten vloer, toegang tot de stahoge kelder, toilet met fontein, lichte royale woonkamer met open haard en openslaande deuren naar de tuin, zij-entree met hal en bergkast met garderobe, woonkeuken met open haard en dubbele opslaande deuren naar terras en tuin.

Verdieping:
Overloop, slaapkamer aan de voorzijde met openslaande deuren naar het balkon en doorloop naar kledingkamer, tweede slaapkamer aan de achterzijde met vaste kasten, badkamer met ligbad, inloopdouche en dubbele wastafel, separaat toilet.

Zolderverdieping:
Royale overloop met bergkast, tweede badkamer met douche, wastafel, wasmachine/drogeraansluiting en c.v. opstelling, twee slaapkamers (beide met dakkapel).

Bijzonderheden:
• parkeerplaats op eigen terrein
• woonoppervlak 187m2
• sfeervolle overdekte veranda
• bouwkundige keuring aanwezig
• pannendak ca 15 jaar geleden vernieuwd.

Lees de volledige omschrijving

Kenmerken

Algemeen

Aangeboden sinds
6+ maanden
Status
Verkocht
Aanvaarding
In overleg
Soort woonhuis
Villa, twee onder een kapwoning
Soort bouw
Bestaande bouw
Specifiek
Beschermd stads of dorpsgezicht
Soort dak
Pannen
Ligging
Aan drukke weg, in woonwijk

Oppervlakten en inhoud

Wonen
187 m²
Overige inpandige ruimte
12 m²
Gebouwgebonden Buitenruimte
2 m²
Externe bergruimte
6 m²
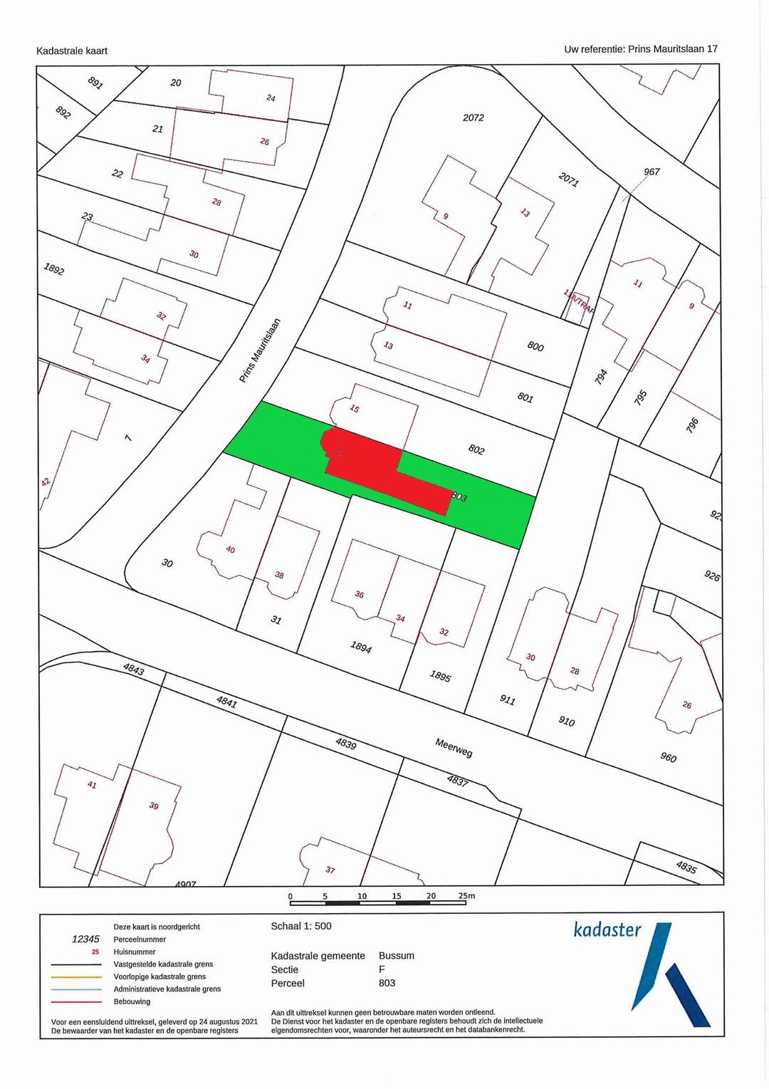
Perceel
352 m²
Inhoud
701 m³

Indeling

Aantal kamers
6 kamers (4 slaapkamers)
Aantal badkamers
2 badkamers
Badkamervoorzieningen
Douche, dubbele wastafel, inloopdouche, ligbad, vloerverwarming, wasmachineaansluiting, wastafel
Aantal woonlagen
4

Energie

Isolatie
Dakisolatie, gedeeltelijk dubbel glas
Verwarming
Cv ketel, open haard
Warm water
Cv ketel
Cv-ketel
Remeha (gas gestookt combiketel uit 2021, eigendom)

Kadastrale gegevens

Perceelnaam
Bussum F 803
Oppervlakte
352 m²
Eigendomssituatie
Volle eigendom
Perceel
BSM01-F-803

Buitenruimte

Tuin
Achtertuin, voortuin
Achtertuin
96 m²
Ligging tuin
Zuidoost bereikbaar via achterom

Bergruimte

Schuur/berging
Vrijstaand steen

Parkeergelegenheid

Soort parkeergelegenheid
Op eigen terrein
Bekijk alle kenmerken