Verhuurd

Valeriusstraat 30 -hs Amsterdam

Omschrijving

***ENGLISH VERSION BELOW***

Deze prachtig gerenoveerde benedenwoning staat aan het begin van de Valeriusstraat en om de hoek van de bekende ‘Cornelis Schuyt’. Een luxe woning met ruim 135 m² woonoppervlak, een stadstuin van circa 30 m² en een tuinhuis met charmante uitstraling.
In de afgelopen periode is er hard gewerkt om het huis in stijl om te toveren tot een sfeervol, modern, licht en volwaardig ‘juweeltje’. Hierbij is gebruik gemaakt van hoogwaardige bouwmaterialen en zijn stijlkenmerken zorgvuldig bewaard gebleven.
Wonen op één van de mooiste locaties in het prestigieuze Oud-Zuid van Amsterdam.
U bent van harte welkom voor een bezichtiging!

INDELING
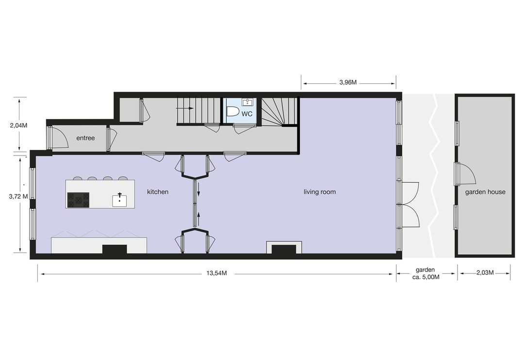
Begane grond:
Overdekte entree
Vestibule met klassieke klapdeur
Marmeren gang met vaste kast en toegang tot een royale provisiekelder
Toilet
Luxe woonkeuken aan de voorzijde voorzien van (o.a.) spoel- en kookeiland
L-vormige woonkamer en suite met zwarte pui grenzend aan de achtertuin met bijgebouw

Verdieping:
Overloop met afgesloten ruimte voor wasmachine en wasdroger
Slaapkamer achterzijde met originele hardstenen schouw, walk in closet, vanity en op maat gemaakt meubel
Tweede slaapkamer met vaste kast
Derde slaapkamer met kastenwand
Badkamer met stortdouche, wc, dubbele wastafel en vloerverwarming

Privé terras met charmant tuinhuis van circa 12 m²

Omgeving
De ligging is uitstekend! Winkels, horeca gelegenheden, openbaar vervoer, WTC en de Zuid-As bevinden zich op loop- en fietsafstand. Verschillende (internationale) scholen en het Vondelpark zijn eveneens nabij gelegen en diverse uitvalswegen zijn bereikbaar binnen enkele rij minuten.

Overige kenmerken:
• Fraaie visgraat eiken parketvloer
• Professioneel lichtplan
• Op maat gemaakte gordijnen
• Provisiekelder circa 8 m²
• Tuinhuis is voorzien van elektra

Maandelijkse huurprijs bedraagt € 5.500,- exclusief gebruikerslasten
Huurperiode 1 jaar met eventuele optie tot verlengen.

***ENGLISH VERSION***

This beautifully renovated ground floor apartment is located at the beginning of Valeriusstraat and around the corner from the famous “Cornelis Schuyt”. A very luxurious home divided over two floors, with over 135 m² of living space, an enclosed garden of approximately 30 m² and a charming garden house.
Recently, the house has been transformed into an attractive, modern, light ‘gem’.
High-quality building materials were used and style features were carefully preserved.
Living in one of the most beautiful locations in the prestigious Oud-Zuid of Amsterdam.
You are very welcome for a viewing!

LAYOUT
Ground floor:
Covered entrance
Vestibule
Marble corridor with toilet and access to a spacious cellar
Luxurious kitchen at the front of the house with rinsing and cooking island
En suite doors to L-shaped living room with black facade adjacent to the back garden

First floor:
Landing
Laundry closet
Bedroom with original hard stone fireplace, walk in closet, vanity and custom made furniture
Second bedroom with wardrobe
Third bedroom with wardrobes
Bathroom with rain shower, toilet, double basin and underfloor heating

Private terrace with garden house of 12 m²

Surroundings
The location is excellent! Shops, restaurants, public transport, WTC and the Zuid-As are within walking and cycling distance. Various (international) schools and the Vondelpark are also nearby and various main roads are accessible within a few driving minutes.

Other characteristics:
• Beautiful herringbone oak parquet floor
• Professional lighting plan
• Custom made curtains
• Cellar of approximately 8 m²
• Garden house with electricity

Monthly rent is € 5,500.- excluding user charges
Period: one year and possible option to extend.

Lees de volledige omschrijving

Kenmerken

Algemeen

Huurovereenkomst
Onbepaalde tijd
Aangeboden sinds
6+ maanden
Status
Verhuurd
Aanvaarding
Per direct beschikbaar
Soort woonhuis
Appartement, dubbel benedenhuis
Soort bouw
Bestaande bouw
Bouwjaar
1905
Soort dak
Bitumineuze dakbedekking
Ligging
Aan rustige weg, in woonwijk

Oppervlakten en inhoud

Wonen
135 m²
Overige inpandige ruimte
8 m²
Externe bergruimte
12 m²
Inhoud
550 m³

Indeling

Aantal kamers
6 kamers (4 slaapkamers)
Aantal badkamers
1 badkamer
Badkamervoorzieningen
Douche, dubbele wastafel, toilet, vloerverwarming
Aantal woonlagen
3

Energie

Isolatie
Vloerisolatie
Warm water
Cv ketel

Kadastrale gegevens

Perceelnaam
Amsterdam U 10180
Eigendomssituatie
Volle eigendom
Perceel
ASD17-U-10180

Buitenruimte

Tuin
Achtertuin
Achtertuin
29 m²

Bergruimte

Schuur/berging
Vrijstaand steen

Parkeergelegenheid

Soort parkeergelegenheid
Betaald parkeren, parkeervergunningen
Bekijk alle kenmerken